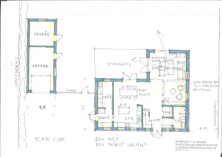
Efter mötet med arkitekt Thomas på A-Design har vi nu fått ett underbart fint hus med en helt annan planlösning än den första vi var erbjudna. Huset kommer byggas lite i vinkel, 1½plans med öppet upp i nock i vardagsrum. Köket byggs med köksö där spishäll kommer placeras.
lördag 9 januari 2010
måndag 4 januari 2010
Små steg framåt...
Nu börjar vi hoppas att allt ska ordna sig. Idag skrev vi på köpebrevet av tomten så nu är den vår. Fast jag vågar inte ropa hej innan vi har lagfarten i våra händer. Eftersom de varit så många helgdagar kommer nog dröja lite längre innan vi får besked. Men snart så....
Nu är även mitt eget hus sålt (igen). Paret som nu köpt det verkar bra och allt är i sin ordning. Vi ska bara klara av besiktning av huset innan det blir slutgiltligt. Håll tummarna inget dyker upp då så de hoppar av. Det enda lilla "problemet" är att jag måste flytta ut 1 juni och vårt nya hus kommer inte bli klart tills dess. Det blir att flytta in till Robert,jag och katterna.
Nu är även mitt eget hus sålt (igen). Paret som nu köpt det verkar bra och allt är i sin ordning. Vi ska bara klara av besiktning av huset innan det blir slutgiltligt. Håll tummarna inget dyker upp då så de hoppar av. Det enda lilla "problemet" är att jag måste flytta ut 1 juni och vårt nya hus kommer inte bli klart tills dess. Det blir att flytta in till Robert,jag och katterna.
Prenumerera på:
Kommentarer (Atom)


